Строительство в Костромской, Ивановской, Ярославской и Московской областях: +7 (4942) 30-26-56, +7 (903) 634-47-67

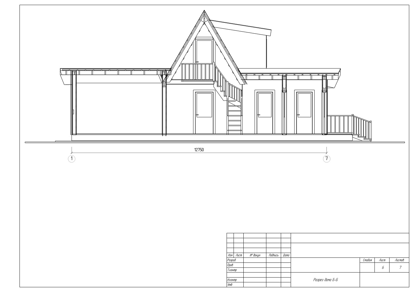
Каркасный дом-треугольник

Каркасный "А" образный дом "Треугольник.

 

Упрощённая каркасная конструкция из треугольных рам.

 

 

 

 

 

 

 

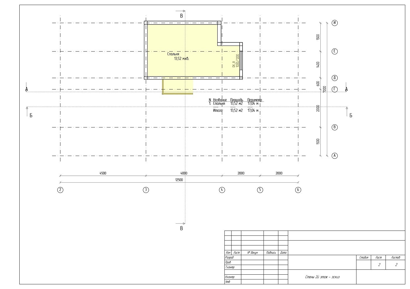
Планы дома.

 

Фасады.



Цена по запросу по запросу
Общая высота 6 м
Высота этажей первый этаж — 2,4 м;
второй этаж — 2,8 м
первый этаж — 2,4 м;
второй этаж — 3 м
Обвязка два венца из бруса 150х150 мм естественной влажности два венца из бруса 150х150 мм естественной влажности
Лаги брус 150х100 мм (на ребро); шаг — 0,6 м
Перегородки каркасно-щитовые 100 мм каркасно-щитовые 100 мм + звукоизоляция
Черновые полы из не обрезной доски (естественной влажности) 18-22 мм
Чистовые полы сухая строганная шпунтованная доска толщиной 27-30 мм сухая строганная шпунтованная доска толщиной 36 мм
Отделка стен и потолка сухая вагонка (класс B)
Стропильная система обрезная доска 50х150 мм естественной влажности
Обрешетка Не обрезная доска 25 мм естественной влажности
Фронтоны (фасад) вагонка естественной влажности сухая вагонка
Межэтажные перекрытия брус 150х50 мм естественной влажности (на ребро)
Кровля ондулин (красный, коричневый, зелёный)
Толщина утепления Rokwooll наружные стены, полы, потолки
150 мм
наружные стены, полы, потолки
200 мм
Паро-гидроизоляция Наноизол и его аналоги
Окна Деревянные обналиченные. Двойное остекление. Двухкамерный стеклопакет. Обналичка, фурнитура.
Двери филенчатые обналиченные
Лестница на 2-й этаж деревянная
Плинтус отделка входит в базовую стоимость
Фундамент дома Винтовые сваи

 

Вернуться назад