Строительство в Костромской, Ивановской, Ярославской и Московской областях: +7 (4942) 30-26-56, +7 (903) 634-47-67

Баня «Post&Beam»

Комбинированная деревянная баня с бассейном выполненная по технологии Post end Beam (Пост анд Беам)

Каркас стен: Брёвна диаметром 280-400 мм. Ель, сосна.

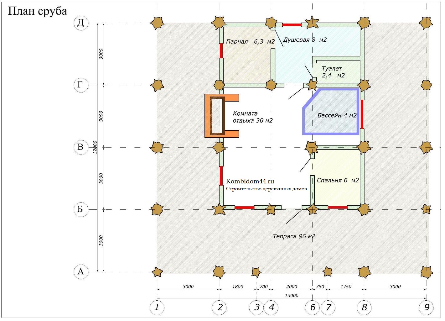
Габариты бани: 13,0х12,0м.

Общая площадь бани: 152,7 м2

Площадь террасы: 96,0 м2

План сруба

Базовая комплектация

Стоимость: уточняйте

Основание дома Опорный брус 200х200 мм (фундамент ж/б сваи 150х150мм)
Подкладочная доска 50х200 мм (фундамент ленточный)
Наружные стены Бревно, диаметр 280-400 мм. Материал: ель, сосна
Внутренние перегородки Брус 100х200 мм с шагом 600 мм
Лаги пола 1го и мансардного этажей Брус 100х200 мм с шагом 600 мм
Черновой пол Доска 25х100 мм с шагом 300 мм
Стропильная система Доска 50х200 мм с шагом 600 мм
Комплект расходных материалов Деревянные нагеля, джут, скобяные изделия

Назад к проектам

Остались вопросы по проекту? Заполните форму, и мы ответим вам в ближайшее время